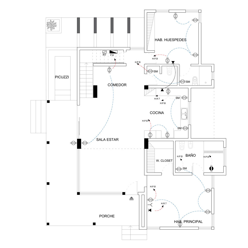
Detrás de un simple bombillo que ilumina y de un tomacorriente más allá del diseño y distribución en el espacio existe una serie de cálculos y dimensionamiento de los cables según su capacidad y la carga total del circuito, no es lo mismo dimensionar una salida para una bomba de agua de 0.5 Hp a una de 5 Hp.
Arte Emil Silenzio te ofrece el servicio de diseño, calculo e instalación eléctrica no importa si se trata de un sistema monofásico o trifásico. Dependiendo de la demanda de energía de tu sistema eléctrico te recomendamos lo que mejor se ajusta a tu proyecto.